
Хозблок и сарай не синонимы, точно так же, как и бытовка. Времена, когда крестьянин, владевший менее 5 десятин земли, считался бедняком, канули в Лету. Современные методы землепользования обеспечивают весомое подспорье семье с 6-10 соток продуктивной земельной площади, но и вывод ее из хозоборота под надворные постройки становится критичным. Отсюда и появление хозблоков, объединяющих в себе функции нескольких подсобных и/или временных строений. В настоящее время хозблоки выступают чаще всего в таких ипостасях (см. также рис.):

- простейший вариант на малом участке – надворная кладовая, возможно, объединенная с туалетом;
- старый добрый сарай, возможно, разделенный на отсеки: для хранения инвентаря, содержания мелкой домашней живности, ночевки в непредвиденной ситуации;
- хозблок-убежище, если в течение сезона посещаемости участка ночевки предполагаются регулярные. Наиболее широкая область применения – бытовка на время самостроя урывками, а по его завершении – сарай, летний душ, запасной туалет;
- кладовая, совмещенная с временно или сезонно обитаемым помещением. Напр., хозяйской мастерской или гостевым домиком. Данное сооружение позволяет также максимально использовать продуктивную площадь товарной дачи или загородного участка: один иди двое живут там с ранней весны до поздней осени и выполняют текущие сельхозработы, а другие приезжают на выходные помочь им;
- хозяйственно-жилое помещение, пригодное для жилья круглый год. Чаще всего – временное жилище на период строительства капитального дома, затем без серьезного переоборудования используемое как сарай, кладовая, птичник, крольчатник и т.п.
Высокий спрос на модульные хозяйственные строения производители быстросборных сооружений удовлетворяют вполне удовлетворительно. Однако спрос диктует не только предложение, но и цены, которые в данном сегменте в целом не радуют. Полноценная замена типовому хозблоку – отслуживший свое автокузов типа КУНГ (кузов универсальный нормального габарита) – отходит в прошлое. Производители и владельцы спецавтотехники деньги считать тоже умеют, и пригодный для дальнейшего использования списанный кунг задешево уже не купить – он обойдется дороже пластикового или жестяного (из профлиста) типового хозблока. Хотя, конечно, в кунге теплее и прослужит он дольше. Поэтому задача этой статьи – рассказать, как соорудить хозблок своими руками сообразно собственным условиям м потребностям, и который по долговечности будет сравним с капитальными сооружениями.
Дачные варианты
На обычную дачу-подспорье ездят и трудиться, и отдыхать. Проблема нехватки земли стоит, как правило, довольно остро – площадь участка 4-10 соток. Вместе с тем захламлять дачный домик инвентарем и рабочей одеждой не очень-то хочется; кроме того, хранилище средств агрохимии должно располагаться в отдельном, недоступном для детей и животных нежилом помещении. Кроме того, для постройки долговременных сооружений на фундаменте нет ни свободной площади, ни особого желания, да и денег скорее всего тоже. Как следствие, главные требования, которым должен удовлетворять хозблок для дачи выходного дня:
- Минимальные размеры в плане.
- Возможность установки без фундамента.
- Достаточно жесткая конструкция, рассчитанная на длительную эксплуатацию.
- Возможность изготовления на стороне и транспортировки на место в собранном виде – опционально.
- Возможность переноса в пределах участка без применения грузоподъемных механизмов, если понадобится вернуть землю под блоком в оборот.
Варианты исполнения дачных хозблоков показаны на рис. Слева – надворная кладовая-шкаф с отделениями для одежды, лопат, грабель и т.п. (без полок), мелкого инвентаря и сельхозхимии (с полками). По массогабаритам данный хозблок-кладовка допускает транспортировку на верхнем багажнике легкового автомобиля, а двое мужчин без большого напряга снимают его оттуда, относят и ставят на место. Под установку достаточно просто выровнять грунт и подложить под углы кирпичи, тротуарные плитки и т.п. Для долговечности нужно все детали 2-3 раза пропитать водно-полимерной эмульсией (строительным экогрунтом).

Чертежи простых хозблоков для дачи
Справа вверху – конструкция, известная не то что с советских времен, но еще с предсоветских, от Ильича в кепке. Это его идея – наделять рабочий класс подгородным огородами, предками позднейших дач. «Благодаря» военному коммунизму от того же вечно живого Ильича голодуха тогда царила дичайшая, зато конфискованной земли хватало. Но обуржуазиваться – ни-ни! Сараи – у сторонников кулачества, там ведь можно козу держать, не то и корову. А за строительство собственной загородной резиденции контру вообще в ЧК к Железному Феликсу! Самое большее для освобожденных революцией – одно отхожее место на семейство, но хранить лопаты-тяпки где-то надо. Вот тогда и появился хозблок, как он есть. Но вернемся в тему.
Блокировать мини-сарайчик с туалетом побуждают и вполне здраво обоснованные современные правила. Дворовые места общего пользования должны располагаться не ближе 3 м к границе участка и не ближе 15 к жилым строениям, своим или соседским. Для надворных построек те же расстояния 4 и 6 м, тут уже сказывается ветровая аэродинамика и пожароопасность. Минимальные по эргономике размеры самого хозблока ок. 1,8х1,2 м, что все вместе дает возможность найти ему место на самом маленьком участке в плотно обустроенном дачном массиве.
Под монтаж дачного мини-хозблока с туалетом и рукомойником нужно под его углым выкопать 4 ямки на штык лопаты, заполнить их щебнем и утрамбовать. Затем укладываются бетонные плитки от 200х200х40, а на них, по длинным сторонам – балки из бруса от 100х75, которые закрепляются вбитыми в грунт стальным анкерами. Это и есть все основание сооружения; остальные детали каркаса из брусьев от 60х60. Обшивка – шифер, профлист, любые другие пригодные для этого листовые материалы. Поскольку условия расположения выгребной ямы достаточно жесткие, туалет типа пудр-клозет: приемник отходов жизнедеятельности – ведро с торфокрошкой. Слив из рукомойника в дренажную трубу (выпуск – на глубину не менее 1,7 м).
Известен также увеличенный вариант строения такого рода (справа внизу на рис.); склад может служить и убежищем в непогоду. Но, во-первых, раз есть душ, но нужен и полноценный септик для приема стоков. Во-вторых, в связи прежде всего с сезонными подвижками грунта строение должно быть каркасным на фундаменте (см. далее) на столбах от 100х100.
Примечание: о постройке более современного мини-хозблока 2х1,5 м для дачи см. видео:
Видео: самодельный хозблок 2 х 1,5
Какое выбрать основание
«Барин, сарайка моя завалилась, да и коровку задавило. Оброк-то отсрочь!» Сам себе барин или нет, но под долговременный хозблок на постоянном месте необходимо надежное основание. Тем более, если в сооружении предполагается пребывание детей и/или спящих. Однако закладывать под сооружение, в принципе не капитальное, капитальный фундамент на полную глубину нерационально со всех точек зрения, и земля под ним выводится из оборота навсегда.
Решить проблему позволяет, во-первых, самый характер сезонных подвижек грунта. Земля пучится не точечно, и в круге диаметром прим. 7-7,5 м ее сезонные воздымания-просадки можно считать не создающими критического крена достаточно хорошо отыгрывающей конструкции сооружения. Во-вторых – выбор соотв. материала и конструкции постройки, см. далее. В-третьих, строение в этом случае получается легким, т.е. дающим весовую нагрузку в разы меньше, чем капитальное таких же размеров в плане. По совокупности исходных данных как возможные варианты основания выбираем фундаменты столбчатый незаглубленный или свайный на геошурупах – легких винтовых сваях, предназначенных для заворачивания вручную.
Общие размеры
Таким образом, все строение будет плавающим, при условии, что его крен не превысит строительной нормы 3 мм/м по горизонтали. По характеру пучения грунта размеры хозблока в плане выбираются такими, чтобы он вписывался в круг диаметром 7 м. Обитаемый хозблок, разумеется, желательно делать побольше, а модульный сарай или убежище – лишь бы там разместилось содержимое, поскольку, чем меньше их площадь в проекции и чем они компактнее, тем более облегчаются требования к основанию сооружения.
Примечание: общий крен капитальных жилых строений недопустим, т.к. дает колоссальную боковую составляющую весовой нагрузки на несущие конструкции и фундамент. Поэтому жилые дома плавающими не строятся, но на легкие хозпостройки этот запрет не распространяется.
Столбчатый
Столбики незаглубленного фундамент могут быть выполнены из дерева, красного рабочего кирпича, залитых цементно-песчаным раствором (ЦПС) отрезков труб, бетонными монолитными в разъемную опалубку или из готовых фундаментных блоков 200х200х400. В последнее время получила распространение заливка фундаментных опор в неудаляемые опалубки из легковых автошин, см. напр. сюжет:
Видео: опоры фундамента для хозблока из бетона и покрышек
По совокупности свойств наилучшим оказывается фундамент из готовых железобетонных блоков. «Самолитный» на первый взгляд несколько дешевле, но, с учетом косвенных финансовых затрат на время техперерыва для набора бетоном хотя бы начальной прочности, оказывается все же дороже. Тем более, что фундаментные блоки можно изготовить и самостоятельно заранее – под самый тяжелый хозблок вполне сгодятся из бетона М150. Важнейшее достоинство блочно-столбчатого фундамента – его без работ нулевого цикла и спецтехники можно закладывать на грунтах до среднепучинистых включительно. Главный недостаток – поверхность грунта должна быть достаточно ровной; допустимый уклон не более 10-12 см в пределах проекции строения.
Как выглядит блочный фундаментный столбик, видно слева на рис., а справа показано его устройство:

Внешний вид и устройство фундаментного столбика из железобетонных блоков
Основано оно на том, что силы морозного пучения резко падают с глубиной. Кладочный раствор обычный строительный, или (лучше) клей для бетона или камня. Проливать боковую демпфирующую засыпку жидким ЦПС обязательно; таким способом образуется бутобетонная обечайка, не дающая боковым составляющим сил пучения выдавить щебень. Канал под анкер (резьбовую шпильку (М16-М20)х(300 + высота балки ростверка, см. далее) бурится в готовом столбике. Если для этого нет мощного перфоратора, то канавки под анкер можно заранее вырезать в камнях УШМ (болгаркой) с диском по камню. Самый анкер вмуровывается на ЦПС или клею по бетону.
Вариации мощности (толщины) подложки и подушки рассчитаны на выравнивание оголовков столбиков в горизонт. Практически это осуществляется таким образом:
- находится самый возвышенный угол фундамента;
- там роется котлован и устраиваются подложка с подушкой минимальной мощности (на непучинистых и слабопучинистых грунтах можно уменьшить до 50 мм для того и другого) и собирается стартовый столбик;
- по его оголовку, вехам и шнуру, с помощью шлангового уровня или лазерного нивелира отбиваются места остальных опор (не забудьте проверить прямоугольность промером диагоналей!);
- готовится рейка-щуп с пяткой от 200х200 до 400х400 (лучше) с отметкой 600 мм (800-900 мм для снежных мест);
- роются котлованы под опоры глубиной не менее 600 мм (на 2 штыка);
- щупом определяется необходимая суммарная мощность подложка+подушка;
- подсыпается и послойно трамбуется подложка до мощности 0,35-0,4 от суммарной;
- также послойно подсыпается и трамбуется щебень, пока отметка на щупе не встанет по шнуру;
- собираются столбики;
- проверяются и, если надо, ломом или деревянной вагой подправляются в горизонт оголовки столбиков;
- подсыпается и слегка, чтобы не своротить столбы, трамбуется боковая засыпка;
- верха боковой засыпки проливаются ЦПС;
- спустя 2-3 суток (лучше – на следующие выходные) бурятся каналы под анкера, и вмуровываются самые анкера.
- спустя еще такое же время монтируется ростверк или нижний венец (см. далее) и продолжаются последующие работы.
Иногда фундаментные столбики собирают из шлакоблоков или блоков легкого поризованного бетона. Дешево (особенно шлакоблоки), вес хозпостройки выдержит. Но – не надо. Пористый материал за лето-осень натянет влаги, а зимой потрескается от морозобоя.
Примечание: если размеры в плане легкого строения на непучинистом или слабо пучинистом грунте не превышают прим. 5х3 м, то столбы фундамента можно собирать не из сдвоенных, а из одинарных блоков, см. ролик:
Видео: хозблок 5×3 своими руками
Свайно-винтовой
Геошурупы (screw pillars) как опоры основания капитальных жилых зданий зарекомендовали себя, откровенно говоря, не самым лучшим образом, а заявляемые сроки их службы в 100-120 лет явно не соответствуют реально наблюдаемым. Но под хозблок и др. надворные постройки фундамент не геошурупах в общем-то оптимальное решение, кроме стоимости: обойдется он не менее чем в 2-2,5 раза дороже блочно-столбчатого (хотя все равно очень недорого сравнительно хотя бы с ленточным). Зато никаких вспомогательных и предварительных земляных работ вообще не надо, техперерывов тоже, выравнивание оголовков в горизонт возможно по ходу установки свай (их можно немного выворачивать – заворачивать обратно). Для возвращения земли в оборот достаточно просто затампонировать скважины от вывернутых свай грунтом; сами извлеченные из него геошурупы допустимо использовать повторно. Но главное достоинство геошурупов – фундамент из них можно вручную без предварительных нивелировок закладывать на уклоне до 10 градусов (!) и даже более. По совокупности показателей построить хозблок на свайно-винтовом фундаменте единственно возможно в след. случаях:
- на уклоне;
- на слабых, сильно и чрезмерно пучинистых, сыпучих, топких и др. неустойчивых грунтах;
- если заглубление геошурупа 1,2 м или менее, независимо от характера грунта;
- под недолговременные сооружения на ценной плодородной земле (напр., на 2-3 года на время капитального строительства).
В остальных случаях выбор – шурупы или столбы – дело финансовых обстоятельств застройщика. По всем остальным показателям легкие винтовые сваи под хозблок лучше.
Примечание: фундамент на облегченных винтовых сваях нельзя закладывать на каменистых и крупнообломочных грунтах – просто не ввинтятся.
Нижний венец деревянного строения (см. далее) накладывается, как правило, по ростверку, уложенному на оголовки геошурупов (поз. 1 на рис.). Ставить венец прямо на сваи допустимо лишь в отдельных случаях, см. ниже. Дело в том, что легкие сваи очень охотно передают туда-сюда (от дома на грунт и обратно) злейшего врага строительных конструкций – сосредоточенные нагрузки. Жестко связывающий опоры ростверк распределяет их.

Геошурупы (облегченные винтовые сваи) и фундамент на них
Если ростверк деревянный (поз. 1), его детали до сборки должны быть обильно насквозь пропитаны долговечным органическим гидрофобизатором – горячей олифой или, лучше, подогретой битумной мастикой. Кроме предохранения критически важной части конструкции от гнили, пропитка увеличивает ее прочность и жесткость.
Принцип работы легкой винтовой сваи иллюстрирует поз. 2 рис. Геошурупы выпускаются различных калибров и конфигурации под всевозможные типы грунтов, на которых еще возможно строительство, поз. 3. Непременное условие устойчивости и надежности легкого свайно-винтового фундамента – основная винтовая часть сваи должна уходить вглубь не менее чем на 3/4 ниже нормативной глубины промерзания НГП, снова поз. 2. Тем не менее, двое средней силы рабочих вручную за смену заворачивают до 16-20 геошурупов, в т.ч на неудобьях, поз. 3.
Ростверк или венец?
Опорные точки (столбы или сваи) фундамент, но еще не полное основание легкого плавающего строения: сосредоточенные нагрузки нужно распределить по его надземной конструкции. В этом отношении особенно опасны висячие (ничем не подпертые) средоточия (фокусы) механических нагрузок. Поэтому завершает создание надежного основания постройки нижний пояс ее конструкции, жестко соединенный с опорами.
Устойчивые плавающие строения создаются из пластиковых модулей или деревянными. Металлокаркасы ненадежны: тонкостенные «играющие» из спецпрофилей склонны к внезапному разрушению, а сварные из профтрубы дороги, трудоемки, и на незаглубленных фундаментах сварные швы часто лопаются (расходятся). Пластиковое литье удел промышленного производства, а на подсобно-хозяйственный самострой остаются фактически только древесные пиломатериалы; деревянные строения из массива (бревенчатые, брусовые) относятся к капитальным
Если отношение сторон хозблока более прим. 1,7, а короткая сторона не длиннее 1,7-1,8 м, и грунт под строением нормально несущий устойчивый (непучинистый или слабо пучинистый), то нижний пояс может быть простой висячей (без опор внутри) рамой с навесными лагами пола, вверху слева на рис.:

Нижние опорные пояса легких деревянных строительных конструкций
Выраженного фокуса нагрузок в нижнем поясе такого строения не возникает, они сами по себе растекаются вдоль. Под «квадратный» хозблок компактной планировки (соотношение сторон от 0,8 до 1,2) рама нижнего пояса обязательно нужна крестовая с центральной опорой (вверху справа), т.к. в таком случае сильный центральный фокус неизбежен. На устойчивых грунтах лаги пола могут быть навешены в квадратах рамы, а на средне- и более пучинистых крестовая рама будет ростверком, на котором собирается собственно нижний пояс строения. Если отношение сторон сооружения от 1,2 до 1,7 и короткая сторона длиннее 1,7 м, то крестовая рама нужна и в этом случае, слева внизу. Вообще же, по соотношению надежности к затратам труда и финансовым, оптимальный вариант нижнего пояса для большого обитаемого хозблока – на ростверке простая рама с врезными лагами, опирающимися на хребтину, внизу справа. Такая сработает как надо на грунтах вплоть до среднепучинистых, а если фундамент свайный, то и до сильнопучинистых (но не до чрезмернопучинистых!). Ее трудоемкость выше, но стоимость меньше, чем рамы с навесными лагами, поскольку материалы можно закупать невыдержанные сортов Iб или даже II.
Примечание: иногда нижние пояса больших хозяйственных строений выполняют в виде хребтовой рамы, см. рис. На устойчивых грунтах хребтовую раму можно накладывать сразу на оголовки геошурупов без ростверка. Но по финансам хребтовая рама хуже двойного пояса с лагами на хребтине, поскольку больше расход дорогого качественного материала (выдержанного бездефектного бруса от 150х150).
Нижний пояс деревянного хозблока в виде хребтовой рамы
Как пилить вдоль?
Нижний пояс или ростверк легких деревянных построек собирается из бруса 100х100 для строений до 2,7 м по длинной стороне, 150х100 на длину до 4,5 м или 150х150 у более длинных. Сборка на стальных уголках недопустима, все соединения столярные вполдерева, в лапу (лучше) или, для врезных лаг, в четверть. Соединения брусьев скрепляются диагональными парами саморезов от 8 мм на всю высоту бруса.
Для выполнения всех таких соединений нужно делать продольные резы. Ленточная или цепная пила есть не у всех и стоят недешево, а точно пилить вручную вдоль считается невозможным. Дело не только в том, что ножовка вязнет – при некотором навыке и обычной хозяйственной «Волчицей» кое-как пилить вдоль можно, не надо только сильно нажимать. Но много и точно – нет, полотно так и норовит уйти от линии реза по волокнам.
Способ справиться с этакой незадачей есть, если имеется болгарка с пильным диском диаметром от 120 мм. Ею нужно провести пионерные надпилы, не доходя до массива бруса (см. рис.), тогда оставшийся осередок без проблем выбирается вручную даже без перезаточки пилы на продольную – надрез не даст полотну пилы уползти в дерево.

Как надрезать брусья болгаркой под столярные соединения
Конструкции
Легкие деревянные строения выполняются по каркасной или сборно-щитовой схеме. Каркасное строение на правильном основании надежно на грунтах до сильнопучинистых включительно; сборно-щитовое – максимум на среднепучинистых. Сборно-щитовую хозпостройку опытный плотник поставит за готовый принять нагрузку фундамент за выходные при наличии сильного достаточно квалифицированного помощника или 2-3 случайных подсобников. Каркасный хозблок обойдется дороже сборно-щитового и его строительство затянется дольше, но может быть выполнено одним работником средней квалификации по ходу набора прочности основанием.
Примечание: дороговизна каркасной конструкции объясняется большим количеством потребного качественного материала (брусьев). Однако, умеючи, добротный обитаемый хозблок можно построить и на каркасе из обычной обрезной доски, см. видео:
Видео: каркасный сарай-мастерская за неделю
Как быть с крышей?

Каркас хозблока с 2-скатной крышей
Парусность и общая весовая нагрузка от осадков на крышу зависят от ее размеров по квадрату. Поскольку хозпостройки сооружения небольшие, оптимальным по трудо- и финансовым затратам будет односкатная пологая крыша со сплошной обрешеткой под кровельный пирог. Более того, именно односкатная крыша по механике органически вписывается в плавающее строение, довершая его силовую схему. Если же по иным соображениям (напр., эстетическим) вы хотите двускатную крышу, то, во-первых, строение на незаглубленном фундаменте надо делать каркасным – сборно-щитовое на такой случай слабовато. Во-вторых, нужно чердачное перекрытие и, поскольку высота чердака мала, его объем пропадет попусту. В-третьих, ригель (несущая конструкция) крыши может быть выполнена целиком из досок от 120х30 и обрешеткой с просветами. Стропильные фермы – простые Λ-образные с одной стяжкой прим. на 2/3 высоты по коньку.
Примечание: высоту потолка хозблока не следует делать более 2,4-2,5 м. Потолок выше серьезно ухудшит как жесткость постройки, так и ее обитаемость в холодную погоду.
Каркасник
Техническая особенность деревянного каркасного строения – пол настилается и внутренняя облицовка нашивается после сборки каркаса. Собственно каркас монтируется в 3 этапа: сборка, доводка, укрепление (фиксация). Все эти работы должны быть выполнены в один строительный сезон, иначе каркас поведет под любым укрытием.
На стадии сборки сперва на собранный и выверенный диагоналями нижний пояс устанавливаются опорные брусья (слева на рис.); здесь уже вполне применимы стальные крепления. Брусья поочередно выставляются по отвесу и подкрепляются временными укосинами (в центре). После монтажа верхнего пояса (венца) укосины снимаются и каркас доводится до прямоугольности по вертикали и горизонтали промерами диагоналей. В ходе доводки ставятся пары «новых» временных укосин по углам, справа.

Стадии сборки деревянного каркаса хозблока
Временные угловые укосины остаются на местах до полного укрепления каркаса постоянными подкосами; лучше всего врезать их вполдерева, но в местах без стабильно сильных ветров сойдут и накладные на стали. Каркас хозблока прим. до 3х4 м на устойчивом грунте достаточно подкрепить небольшими угловыми подкосами, распределяющими эксплуатационные нагрузки, поз. 1 на след. рис.:

Способы укрепления деревянного каркаса хозблока
На сухом проницаемом, но также устойчивом грунте (напр., супесь на взгорке) экономически соблазнителен вариант хозблока с полом по грунту. В таком случае пары угловых подкосов ставят только снизу под углом 30-40 градусов от вертикали на 1/2 – 2/3 высоты ребер каркаса, поз. 2. Во всех остальных случаях вертикальные секции каркаса подкрепляются на полные диагонали согласно силовой схеме постройки, поз. 3. Когда постоянные подкосы установлены, еще раз проверяется прямоугольность каркаса, и только после этого монтируются оконные рамы, дверные косяки и притолоки, поз. 4.
Сборно-щитовой
Стены и крыша (или потолок) сборно-щитового хозблока представляют собой наборные панели (решетчатые или готовые щиты), которые собираются отдельно на ровной поверхности – плазе. Строение из решетчатых панелей возможно построить вдвоем; к «по-настоящему щитовому» нужно будет привлекать еще помощников на переноску и подъем щитов. При сборке панелей нужно следить, чтобы они не получились «пропеллером» (с винтовой деформацией). Если «пропеллерную» панель и получится дожать при сборке, то постройка все равно выйдет недостаточно надежной, подтекающей и сквозящей.

Монтаж сборно-щитового хозблока
Типовая методика монтажа легких сборно-щитовых строений – к нижнему поясу, прикрепленному к ростверку и с настланным полом, поз. 1 на рис. Тогда, если панели бездефектные, не понадобится муторная доводка. Крепление рамы к ростверку – саморезы 8-10 мм на всю высоту пояса с шагом 350-600 мм (по углам обязательно). Исключение – хозблок прим. до 3х4 м, на геошурупах в устойчивом грунте и с нижним поясом – хребтовой рамой, поз. 2. Панели по мере установки подкрепляются временными укосинами. Когда все стеновые панели поставлены, укосины попарно убирают и смотрят, сошлись ли углы. Если да, панели скрепляются встык саморезами с тем же шагом. Желательно изнутри наложить на углы черепные бруски от 50х50 на саморезах поменьше с шагом 150-250 мм, это гарантирует от сквозняков. Если хозблок обитаемый в холодное время, угловые швы не помешает и проконопатить.
Панели делаются обычно из обрезной доски (100-120)х40 на стальных уголках. Их (панели) можно готовить зимой не спеша и хранить под навесом. Если найдется 2-3 временных помощника, лучше сразу делать щиты с наружной обшивкой (поз. 3), так меньше вероятности, что на хранении «пойдут пропеллером». На обшивку щитов для хозблока-сарая, убежища или необитаемого желательно пустить ОСП от 8 мм (поз. 4), постройка получится отменно прочной и жесткой. Но жить в ней некоторое время постоянно не приятнее, чем в доме из СИП: стены не дышат, воздух спертый, от малейшего толчка звучит как барабан.
О наружной обшивке
Стандартный недорогой, сухой, теплый (с внутристеновым утеплением), гигиеничный и комфортный вариант наружной обшивки легкого деревянного строения – внакрой обрезной доской от 16 мм, поз. А на рис.; наружные углы зашиваются такими же досками. Американская вагонка, или канадка (поз. Б и В) еще теплее, и в обшитом ею обитаемом хозблоке можно жить суровой зимой без конопатки швов.

Варианты деревянной наружной обшивки хозблока
Сайдинг тоже хорош во всех отношениях, однако дороговат, да и «американка» недешева. Но почти полноценная ей замена – шлюпочная доска, поз. Г, только для житья зимой нужно будет законопатиться. Приобрести шлюпочную доску ныне проблема – обшивку теперешних маломерных судов чаще всего делают из более современных материалов. Но шлюпочной доски можно наделать и самому из обычной, даже дешевой необрезной, на фуговальном станке с простейшим шаблоном-упором.
Примеры конструкций
Второй по востребованности после надворной кладовой – туалета – убежища вид хозблоков для малых ЛПХ – секционированный сарайчик на 4-8 кв м полезной площади. Конструкция преим. сборно-щитовая ради экономии времени постройки и качественных материалов.
Чертежи хозблоков-сараев для малых личных подсобных хозяйств даны на рис.:

Чертежи хозблоков для малых личных подсобных хозяйств
Тот, что слева, может быть бесфундаментным аналогично «пролетарскому» сортиру-кладовке, см. выше. Малая секция для садово-огородного инструмента и одежды, а большая или укрытие от непогоды, или летняя расходная кладовая, или курятник/крольчатник.
Хозблок справа посолиднее, в нем, в спартанских условиях, двоим можно переночевать, а одному прожить с весны до осени. Фундамент нужен из 11 опор: по 4 на длинные стороны, по 3 на короткие (по 1 без угловых, которые общие с длинными) и одна центральная. Еще 6 опор (опционально) под веранду, где можно устроить летнюю кухню.
Круглогодичные обитаемые
Жилой хозблок строится обязательно на фундаменте, способном вынести и нагрузку от отопительно-варочных приборов, хотя бы чугунной буржуйки или печи-голландки на 2,5 кирпича в плане, и расходного водяного бака. Но заминка в данном случае вовсе не в значении и распределении весов, это-то как раз решаемо и на любительском уровне.
Главная проблема отапливаемых хозблоков для круглогодичного проживания 2-4 человек – планировка в жесткой увязке со строительной механикой. Порой создается впечатление, что их проектировщики игнорируют или то, или другое, или то и другое вместе.
Примеры типовых планировок полнофункциональных хозблоков длительного пользования приведены на след. рис.:

Примеры нерациональной планировки хозблоков
Тот, что вверху, с одного конца (левого) явно перегружен по весу, а жесткость конструкции с другого также явно недостаточна. Надежным такое строение будет только на капитальном фундаменте – дорогом, трудоемком, «долгостройном» и навсегда изымающем плодородную землю из сельхозоборота. Раздельный санузел – зачем? Ради некоего «еврокомфорта»? Так они и там в малогабаритных квартирах совмещенные, но со входом теплым, а не через улицу.
У хозблока внизу с распределением весов вроде как все OK. Тем не менее, фундамент под него нужен тоже ленточный. Зачем, спрашивается, было сужать строение до 2 м? Чтобы выгадать 6 кв. м земли (0,06 или 6% от сотки)? Но легкие жилые постройки с отношением сторон свыше 2,2:1 проектировать вообще не рекомендуется – на «точечном» фундаменте общей жесткости не будет и в теплых краях, просто из-за суточных температурных деформаций, а здесь 3:1. Короткий тамбур – только тамбур, никакого дополнительного функционала (скажем, кулинарного) в него не вопрешь. Толчок 1,8х2,3 м не заказывают себе и здравомыслящие олигархи. Не оргии же с девочками там устраивать, для этого побольше места надо.
Способы планировки
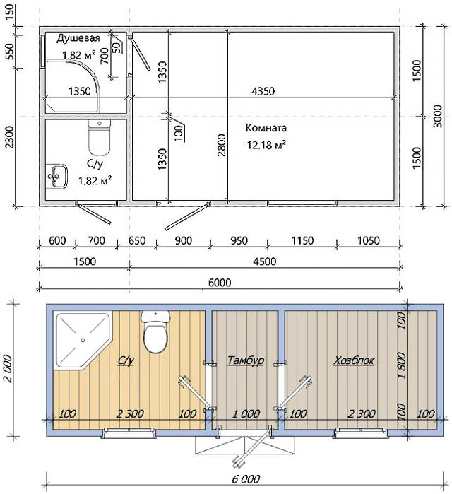
Исходя из требований минимального отвода земельной площади, общей прочности и стойкости, вписывамости в круг диаметром до 7 м и возможно лучшей обитаемости, в т.ч. зимней, предназначенные и для постоянного жилья хозблоки распланировываются в увязке со схемами строительных конструкций по линейному («трамвайчиком») или центральному («в квадрат») принципам. Правильно спроектрованные «квадратные» хозблоки очень прочны, устойчивы к внешним воздействиям и теряют меньше тепла в холода. Фактический (в кв. м) отвод земли под «квадратный» хозблок немного больше, чем под «трамвайчик», но обитаемость «квадрата» гораздо лучше, чем постройки линейной планировки, за счет более эффективного ее (земели) использования: отношения полезной площади строения к занятой им земельной. Фундаментных опор под строения центральной планировки нужно больше вследствие наличия центрального фокуса нагрузок, и они хуже вписываются в участки продолговатые или неправильной формы. Как следствие, подсобные постройки центральной планировки более проектируются на круглогодичное проживание в регионах с суровым климатом, а в средней полосе РФ, на юге Сибири и Дальнем Востоке хозяева давно уж облюбовали каркасный хозблок 6х3 м (схема и размеры каркаса на рис.).

Схема и размеры каркаса хозблока 6х3 м
Схемы фундаментов и расположения помещений обитаемых хозблоков линейной и центральной планировок приведены на след. рис.:

Схемы фундаментов и планировок хозблоков линейной и центральной планировки
Лаги пола в линейном хозблоке врезные, в центральном навесные непосредствен в секциях ростверка, т.е. нижний пояс каркаса в данной конструкции не обязателен. Конструкция внутренних перегородок (обеспечивающих также общую жесткость строений) идентична наружным стенам. Расходные баки холодной и горячей воды на 120-150 литров в общей сложности там и там навешиваются на стены или подвешиваются под потолком. На хозблок-«квадратик» понадобится прим. на 5-6 м больше труб для внутренней разводки инженерных коммуникаций (кроме электрических) и на 2,5-3 м больше для отвода в септик или выгребную яму. Зато в нем достаточно одного отопительно-варочного прибора, тогда как в «трамвайчике» нужны 2: хотя бы плита с водогрейным контуром тамбуре-кухне и отопительная печка в комнате. Кроме того, в «квадратике» ок. половины кухонной зоны можно временно отнять под жилье (напр., для ночлега на раскладушке или надувном матраце), санузел там гораздо теплее, кладовая больше, а в самом внутреннем ее углу в трескучий мороз держится небольшая плюсовая температура, т.е. там зимой можно хранить овощи в закроме, а на стеллаже домашнюю консервацию и все прочее, боящееся заморозки. Также, в очень холодных краях, освещенность комнаты останется достаточной, если убрать боковое окно, что существенно сократит теплопотери.
Примечание: о постройке хозблока 6х3 м своими руками см. видео напоследок:
Видео: хозблок-сарай 6×3 своими руками
cope itemtype="//schema.org/Article" data-nonce="4d9f77373c">





(Пока оценок нет)
cope itemtype="//schema.org/Organization">

Загрузка...







